

GSM kontroleri - način rada i mogućnosti primjene
Razvoj i proizvodnju ovih uređaja radimo od 2004. godine.
Sve što trebate je običan mobilni telefon, kojim možete slati komande u obliku SMS poruka i na isti način dobijati odgovore od GSM kontrolera. U GSM kontroleru se nalazi GSM modul spojen na mikrokontroler, u kojem se izvršava naš program, koji prima komande prepoznaje ih i izvršava.
Naravno, moguće je ostvariti i digitalni prenos podataka, što otvara još čitav niz mogućnosti, ali mi ćemo se, za sada, zadržati samo na komunikaciji i upravljanju preko SMS poruka.
Potrebno je dosta mašte samo da zamislite šta se sve može napraviti sa ovakvim sistemom.
Evo samo nekih ideja:
- uključivanje raznih uređaja u kući (alarm, bojler, grijalica, centralno grijanje...) , ali i dobijanje povratnu informacije (da li je alarm ukljucen, kolika je temperatura u kuci ili u sistemu centralnog...)
- kontrola udaljenih i nedostupnih uređaja - npr. ugradili ste neku opremu na vrh brda ili solitera i potrebno je da pratite šta se dešava sa opremom, kolika je temperatura za vrijeme sunčanih dana, ili da resetujete neki uređaj ako se zablokira iz bilo kojeg razloga... Sa GSM kontrolerom to sve možete uraditi, opet se ne mičući iz fotelje...
- dojava alarma iz kuće/stana ili automobila, ako je došlo do provale/požara/poplave - takvi telefonski pozivnici se prodaju i danas uz alarmne sisteme, ali su ograničeni samo na poziv radi alarmiranja vlasnika. Sa GSM kontrolerom imate mogućnost upravljanja - npr. možete aktivirati mikrofon tako da čujete šta se dešava, ili aktivirati svijetlo, kameru, sirenu.... itd...
- zadavanje reklamnog teksta na nekom velikom displeju, podešavanje sata na istom ili promjena cijene na displeju npr. benzinske pumpe...
- gašenje i blokiranje ukradenog vozila...
- osiguranje naplate za skupe mašine - ako prodajete neku skupu opremu ili mašine sa odgođenim plaćanjem, ovo je odličan način da osigurate naplatu jer ako plaćanje nije izvršeno u dogovorenom roku, jednom komandom možete zaustaviti mašinu. Nakon što dobijete izvod iz banke sa uplatom, pokrenućete ponovo mašinu kod kupca, cijelo vrijeme sjedeći u svojoj fotelji.
Verzija nazvana GSM univerzalni kontroler (GCU_univerzal) koja ima objedinjene funkcije više prethodnih generacija GC-a, a postoji i opcija da se ugradi i RF modul za bežično upravljanje drugim uređajima u kući/stanu/poslovnom prostoru. To znači da je sada moguće sa GSM kontrolerom upravljati sa drugim uređajima bežično u krugu 50-100m, i/ili prenijeti neke podatke u suprotnom smijeru, do GC-a koji vam to može spakovati i poslati SMS-om.
Sa ovim sistemom je moguće realizovati kompletnu kućnu automatizaciju sa GSM kontrolom.
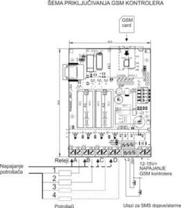
Uputstvo – GSM univerzalni kontroler
Šema spajanja – GSM univerzalni kontroler
Šifra (oznaka) proizvoda | Opis proizvoda | Cijena (KM) |
---|---|---|
GCU_BASIC | GSM univ. kontroler sa jednim releom (uklj.grijanja, otv. kapije/garaze/rampe i sl.) | 180 |
GCU_UNI2 | GSM univerzalni kontroler sa 2 releja, 2 digitalna ulaza za dojave alarma i sl. | 200 |
GCU_UNI2T | GSM kontroler univerzalni, sa temp. senzorom, 2 releja i 2 digitalna ulaza za dojave | 220 |
GCU_UNI4T | GSM kontroler univerzalni, sa temp. senzorom, 4 releja i 4 digitalna ulaza za dojave | 250 |